Verhuurd

Centurionbaan 60-08

3769 AV Soesterberg

Omschrijving

Moderne kantoorunit op A-locatie in Soesterberg

Aan de Centurionbaan 60-08 in Soesterberg bieden wij een representatieve kantoorunit van circa 105 m² aan voor de verhuur. Gelegen op het duurzame bedrijventerrein Richelleweg, direct aan de A28, tussen Utrecht en Amersfoort. Een uitstekende zicht,- en bereikbare locatie voor ondernemers die centraal in Nederland willen werken.

Begane grond – ca. 31 m²
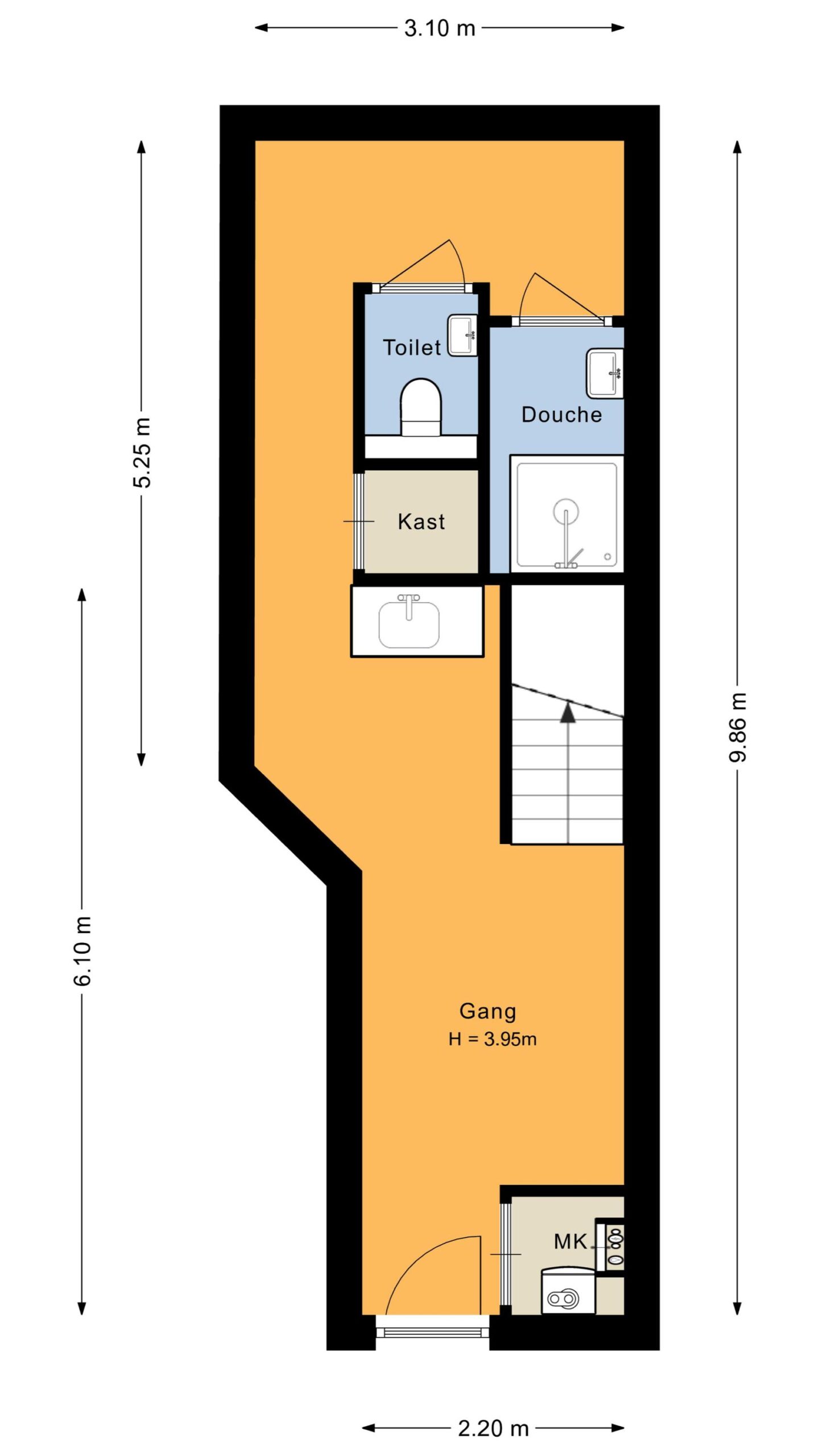
De begane grond is ideaal als opslagruimte of werkplaats, maar kan ook prima dienen als kantoor. De ruimte beschikt over een loopdeur, vloerverwarming, toilet en zelfs een douche.

Eerste verdieping – ca. 74 m²
De eerste verdieping is ingericht als lichte en comfortabele kantoorruimte. Dankzij de grote ramen, airconditioning en geïntegreerde verlichting is het een prettige werkomgeving met een professionele uitstraling. Een gedeelte van de ruimte is d.m.v. glazen deuren af te sluiten. Tevens is er een pantry aanwezig.

Kenmerken:
- Betonnen vloeren
- Pantry, toilet en douche
- Airconditioning
- Elektrische blinds
- Zonnepanelen
- Geïntegreerde verlichting
- Houten trap naar de kantoorruimte
- draai-/kiepraam op de eerste verdieping
- Buitenbestrating
- KVO-gecertificeerd
- Internetvoorziening aanwezig
- Nutsvoorzieningen voor rekening huurder

Locatie
Bedrijventerrein Richelleweg is een modern en duurzaam terrein in een groene omgeving. Strategisch gelegen aan de A28 tussen Utrecht en Amersfoort, in het hart van de Utrechtse Heuvelrug. Het terrein is kleinschalig, representatief en wordt beheerd door een ervaren parkmanagementorganisatie. Buiten werktijden is het terrein afsluitbaar, wat zorgt voor extra veiligheid en rust.

Bestemming
De bestemming biedt ruimte aan bedrijven in de categorieën handel, transport en lichte industrie (max. milieucategorie IV).
Kantoorruimte is toegestaan als ondergeschikte nevenactiviteit. Detailhandel (consumentgericht), horeca en brandstofverkoop zijn niet toegestaan.

Parkeren
Op het terrein is voldoende parkeergelegenheid aanwezig voor medewerkers en bezoekers.

BTW Clausule
De in deze documentatie genoemde bedragen zijn exclusief BTW, uitgaande van het feit dat huurder(blijvend) voldoet aan de criteria welke gesteld zijn of worden voor een belaste verhuur ex. Artikel 11, lid 1 letter b, sub 5, Wet op de omzetbelasting 1968.

Huurprijsaanpassing
Jaarlijks op basis van de Consumentenprijsindex, reeks CPI Alle Huishoudens (2015 =100) zoals gepubliceerd door het Centraal Bureau voor de Statistiek (CBS).

Zekerheidsstelling
Ter meerdere zekerheid van de nakoming van de verplichtingen uit de huurovereenkomst dient een bankgarantie te worden verstrekt gelijk aan 3 (drie) maanden bruto huurprijs te vermeerderen met de verschuldigde omzetbelasting.

Huurperiode
De huurperiode behelst 5 jaar met 5 optiejaren, waarbij in overleg afwijkende huurtermijnen bespreekbaar zijn.

Opzegging
Beëindiging van de huurovereenkomst geschiedt door opzegging tegen het einde van een huurtermijn, met inachtneming van een opzegtermijn van ten minste 6 (zes) maanden.

Aanvaarding
In overleg.

Huurovereenkomst
Op basis van het standaardmodel huurovereenkomst volgens de Raad voor Onroerende Zaken (ROZ februari 2015) voor kantoorruimte in de zin van artikel 7:230a BW, zoals gehanteerd wordt door de Nederlandse Vereniging van Makelaars in onroerend goed (NVM). Verhuurder zal gebruik maken van standaard verhuurderaanpassingen.

Bijzondere bepalingen
Huurder dient zelf en voor eigen rekening en risico zorg te dragen voor verkrijging en voortzetting van de overheidswege benodigde toestemming(en) of vergunning(en), teneinde de door huurder beoogde bedrijfsvoering in het gehuurde te kunnen uitoefenen. Huurder is slechts gerechtigd om in overleg met en na schriftelijke toestemming van de verhuurder naamsaanduiding aan te brengen aan het gehuurde. Het verschil tussen de opgegeven en de werkelijke grootte verleent aan geen der partijen enig recht.

Voorbehoud
Deze informatie wordt u verstrekt onder het voorbehoud van het verkrijgen van de finale goedkeuring en instemming van onze opdrachtgever.

Metrage
De genoemde metrages zijn met zorg berekend. Het verschil tussen de opgegeven en de werkelijke grootte verleent aan geen der partijen enig recht, behoudens ingeval van niet correcte verrekening van de servicekosten. Hierbij geldt als uitgangspunt dat de servicekosten nimmer meer of minder mogen bedragen dan benodigd voor de betaling en/of reservering van de daadwerkelijke gemaakte of te maken kosten.

Voor direct antwoord op uw vragen, neem direct contact op met de eigenaar of behandelend makelaar;

Eigenaar
Bas Mulder
0652131491

Majoor Makelaars
Edwin Majoor
06-11870865

Lees meer

Kenmerken

  • BestemmingBedrijfsruimte
  • Bouwjaar2020
  • Perceelopp.173 m2
  • BouwvormBestaande bouw
Meer kenmerken

Omschrijving

Moderne kantoorunit op A-locatie in Soesterberg

Aan de Centurionbaan 60-08 in Soesterberg bieden wij een representatieve kantoorunit van circa 105 m² aan voor de verhuur. Gelegen op het duurzame bedrijventerrein Richelleweg, direct aan de A28, tussen Utrecht en Amersfoort. Een uitstekende zicht,- en bereikbare locatie voor ondernemers die centraal in Nederland willen werken.

Begane grond – ca. 31 m²
De begane grond is ideaal als opslagruimte of werkplaats, maar kan ook prima dienen als kantoor. De ruimte beschikt over een loopdeur, vloerverwarming, toilet en zelfs een douche.

Eerste verdieping – ca. 74 m²
De eerste verdieping is ingericht als lichte en comfortabele kantoorruimte. Dankzij de grote ramen, airconditioning en geïntegreerde verlichting is het een prettige werkomgeving met een professionele uitstraling. Een gedeelte van de ruimte is d.m.v. glazen deuren af te sluiten. Tevens is er een pantry aanwezig.

Kenmerken:
- Betonnen vloeren
- Pantry, toilet en douche
- Airconditioning
- Elektrische blinds
- Zonnepanelen
- Geïntegreerde verlichting
- Houten trap naar de kantoorruimte
- draai-/kiepraam op de eerste verdieping
- Buitenbestrating
- KVO-gecertificeerd
- Internetvoorziening aanwezig
- Nutsvoorzieningen voor rekening huurder

Locatie
Bedrijventerrein Richelleweg is een modern en duurzaam terrein in een groene omgeving. Strategisch gelegen aan de A28 tussen Utrecht en Amersfoort, in het hart van de Utrechtse Heuvelrug. Het terrein is kleinschalig, representatief en wordt beheerd door een ervaren parkmanagementorganisatie. Buiten werktijden is het terrein afsluitbaar, wat zorgt voor extra veiligheid en rust.

Bestemming
De bestemming biedt ruimte aan bedrijven in de categorieën handel, transport en lichte industrie (max. milieucategorie IV).
Kantoorruimte is toegestaan als ondergeschikte nevenactiviteit. Detailhandel (consumentgericht), horeca en brandstofverkoop zijn niet toegestaan.

Parkeren
Op het terrein is voldoende parkeergelegenheid aanwezig voor medewerkers en bezoekers.

BTW Clausule
De in deze documentatie genoemde bedragen zijn exclusief BTW, uitgaande van het feit dat huurder(blijvend) voldoet aan de criteria welke gesteld zijn of worden voor een belaste verhuur ex. Artikel 11, lid 1 letter b, sub 5, Wet op de omzetbelasting 1968.

Huurprijsaanpassing
Jaarlijks op basis van de Consumentenprijsindex, reeks CPI Alle Huishoudens (2015 =100) zoals gepubliceerd door het Centraal Bureau voor de Statistiek (CBS).

Zekerheidsstelling
Ter meerdere zekerheid van de nakoming van de verplichtingen uit de huurovereenkomst dient een bankgarantie te worden verstrekt gelijk aan 3 (drie) maanden bruto huurprijs te vermeerderen met de verschuldigde omzetbelasting.

Huurperiode
De huurperiode behelst 5 jaar met 5 optiejaren, waarbij in overleg afwijkende huurtermijnen bespreekbaar zijn.

Opzegging
Beëindiging van de huurovereenkomst geschiedt door opzegging tegen het einde van een huurtermijn, met inachtneming van een opzegtermijn van ten minste 6 (zes) maanden.

Aanvaarding
In overleg.

Huurovereenkomst
Op basis van het standaardmodel huurovereenkomst volgens de Raad voor Onroerende Zaken (ROZ februari 2015) voor kantoorruimte in de zin van artikel 7:230a BW, zoals gehanteerd wordt door de Nederlandse Vereniging van Makelaars in onroerend goed (NVM). Verhuurder zal gebruik maken van standaard verhuurderaanpassingen.

Bijzondere bepalingen
Huurder dient zelf en voor eigen rekening en risico zorg te dragen voor verkrijging en voortzetting van de overheidswege benodigde toestemming(en) of vergunning(en), teneinde de door huurder beoogde bedrijfsvoering in het gehuurde te kunnen uitoefenen. Huurder is slechts gerechtigd om in overleg met en na schriftelijke toestemming van de verhuurder naamsaanduiding aan te brengen aan het gehuurde. Het verschil tussen de opgegeven en de werkelijke grootte verleent aan geen der partijen enig recht.

Voorbehoud
Deze informatie wordt u verstrekt onder het voorbehoud van het verkrijgen van de finale goedkeuring en instemming van onze opdrachtgever.

Metrage
De genoemde metrages zijn met zorg berekend. Het verschil tussen de opgegeven en de werkelijke grootte verleent aan geen der partijen enig recht, behoudens ingeval van niet correcte verrekening van de servicekosten. Hierbij geldt als uitgangspunt dat de servicekosten nimmer meer of minder mogen bedragen dan benodigd voor de betaling en/of reservering van de daadwerkelijke gemaakte of te maken kosten.

Voor direct antwoord op uw vragen, neem direct contact op met de eigenaar of behandelend makelaar;

Eigenaar
Bas Mulder
0652131491

Majoor Makelaars
Edwin Majoor
06-11870865

Kenmerken

Overdracht
  • Status:Verhuurd
  • Servicekosten:€ 0,- PER_VIERKANTE_METERS_PER_JAAR
Indeling
  • Bestemming:Bedrijfsruimte
  • Perceeloppervlakte:173 m2
  • Oppervlakte bedrijfsruimte:31 m2
  • Oppervlakte kantoorruimte:74 m2
  • Totale oppervlakte:179 m2
Bouwvorm
  • Bouwvorm:Bestaande bouw
  • Bouwjaar:2020
  • Bouwjaar toelichting:
Overdracht
  • Locatie:Bedrijventerrein
  • Aantal verdiepingen:2
  • Energieklasse:A++++
  • Onderhoud binnen:Goed
  • Onderhoud buiten:Goed